Villa singola in vendita

Montegrotto Terme, Via Caposeda
€ 200.000
3 locali 3 locali
200 Mq 200 Mq
2 bagni 2 bagni

Villa singola in vendita

Montegrotto Terme, Via Caposeda

Descrizione annuncio

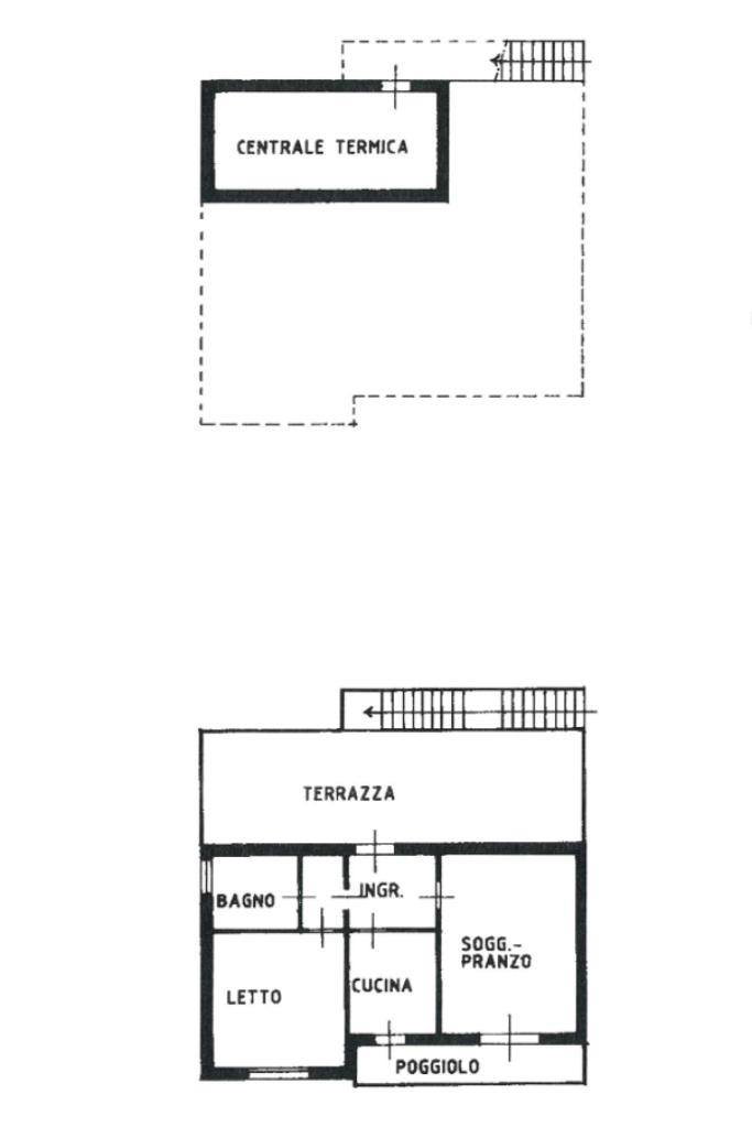
MONTEGROTTO TERME: A pochi passi dal centro, soluzione singola suddivisa in tre unità ben distinte. Al piano terra un negozio con parcheggio esterno attualmnente locato ed a reddito, e appartamento parzialmente ristrutturato composto da un ampio ingresso, salotto luminoso e cucina separata abitabile. La zona notte presenta una camera da letto matrimoniale e bagno con doccia. La scala esterna conduce al piano superiore dove si trova un altro appartamento con terrazzo abitabile vista colli Euganei. L'ingresso conduce al salotto, cucina abitabile con terrazzino, camera da letto matrimoniale e bagno con vasca. A completare scoperto di proprietà su quattro lati e cantina interrata. La disposizione interna permette di personalizzare gli ambienti secondo le proprie esigenze. Situato in una zona residenziale, l'abitazione gode di una posizione strategica, con facile accesso ai servizi locali e alle rinomate terme della zona. Un'opportunità interessante per chi desidera vivere in un contesto sereno, senza rinunciare alla comodità dei servizi cittadini o per chi vuole investire in zona termale e crearsi delle opportunità.

Mostra tutto

Nelle vicinanze

Trasporto pubblico Trasporto pubblico
Terme Euganee - Abano - Montegrotto
Terme Euganee - Abano - Montegrotto
1,4 Km
Montegrotto / Garden (4M)
Montegrotto / Garden (4M)
250 m
Montegrotto / Municipio (5M)
Montegrotto / Municipio (5M)
320 m
Ricariche auto elettriche Ricariche auto elettriche
Hotel Terme Millepini
1,6 Km
Scuole Scuole
Scuola materna Casa dei Folletti
80 m
Scuola Materna Maria Immacolata
350 m
Scuola Media A. Vivaldi
570 m
Scuola Elementare I. Nievo
980 m
Scuole
1,6 Km
Farmacia Farmacia
Farmacia Alle Terme
390 m
Farmacia
830 m
Colombo
1,8 Km
Ospedali Ospedali
Ambulatorio di Salute Mentale
560 m
Supermercati Supermercati
A&O
810 m
Sisa
820 m
Eurospar
1,4 Km
Alìper
1,6 Km
Alíper
1,6 Km
Negozi Negozi
Panificio Fasson
1,3 Km
Alimentara
1,9 Km
Bar Bar
Bar
590 m
Bar Bellavita
770 m
Snack Bar Sunrise
1,1 Km
Mitico Bar
1,2 Km
Bar Zurigo
1,3 Km
Ristoranti Ristoranti
Pizzeria Ristorante La Volpe
130 m
Ristorante pizzeria Hugel Keller
250 m
Pizzicorio
810 m
El Bacaretto dei AnZoi
940 m
Ristorante Miravalle
950 m
Mostra tutto

Caratteristiche

Rif.:
61122309
Piano:
2 di 2 (Piano su più livelli)
Posti auto:
2
Terrazzi:
2
Camere da letto:
2
Arredamento:
Assente
Mostra tutto
Prezzo Prezzo
€ 200.000
Rata mutuo Rata mutuo
€ 919 / mese
Spese annue Spese annue
€ 0
Proponi il tuo prezzoProponi il tuo prezzo
Immobile valutato con T·Valuta

Classe Energetica

G
G
G
G
G
G
G
G
G
EP globale non rinnovabile:
221.00 kW h/m² anno
EP globale rinnovabile:
221.00 kW h/m² anno
EP invernale del fabbricato:
EP estiva del fabbricato:
Anno di costruzione:
1970
Riscaldamento:
Autonomo
Tipo impianto:
A radiatori
Tipo alimentazione:
Metano

Ti interessa visionare l'immobile?

Fissa un appuntamento  Fissa un appuntamento

Richiedi informazioni

* Questi campi sono obbligatori

Calcola il tuo mutuo

Semplice e senza impegno
Anticipo

( % )
Mutuo

( % )

pochi semplici passi

inserisci i tuoi dati
Questionario completato
Grazie per aver richiesto un appuntamento senza impegno con un nostro Consulente del Credito e Assicurativo.

Hai inserito correttamente tutti i dati necessari e a breve riceverai una e-mail con un link da convalidare per inviare i tuoi dati.
Affiliato
La Prima Srl
Viale Stazione, 85 35036 Montegrotto Terme (PD)
Viale Stazione, 85 35036 Montegrotto Terme (PD)
Zona: Montegrotto Terme-Due Carrare
Mostra su mappa
Affiliato
La Prima Srl
Viale Stazione, 85 35036 Montegrotto Terme (PD)

2025 Tecnocasa Franchising S.p.A. - P. IVA 08365160152 - Via Monte Bianco 60/A 20089 Rozzano (MI). Ogni agenzia ha un proprio titolare ed è autonoma. Privacy policy | Policy utilizzo | Cookie policy